Godrej Solitaire, Chembur, Mumbai

PROJECT BRIEF

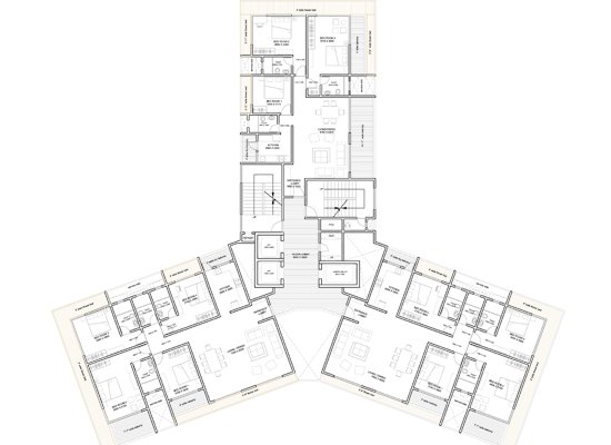
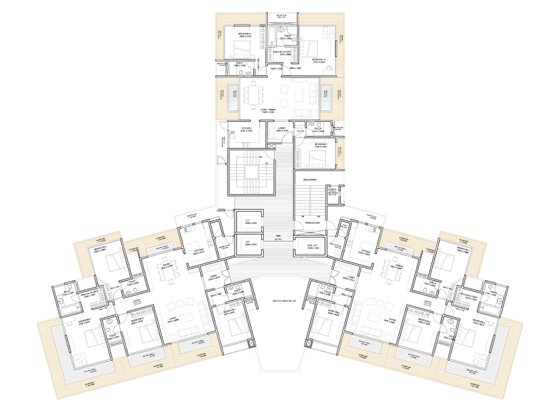
The high-end residential tower in the elite, highly accessible location in Chembur, Mumbai is designed as a single tripod building that maximizes light, ventilation and views available to each Flat.

 

The building is placed on a podium that provides distinction between the parking & services and the habitable and recreational spaces. The Podium then begins to play the role of an elevated ground.

 

The rooms within the flat are located as per the good views offered by the site. Additionally, all building services are clustered around a central core. The premium distinctive feature offered by the building is the large continuous front deck that comprises balcony and flower beds. Additionally, the refuge area is split and placed at every alternate level, providing a common terrace to the residents. Alternatives for typical floor plan are tested to arrive at optimum layout.

 

PROJECT FACTS:

AREA - 14,000 Sqm B.U.A on 1.4 Acres Plot
COST - INR 375 Millions
DESIGN ARCHITECT- P.G. Patki Architects
ANKITA'S ROLE - Project Architect